2700坪の森が、あなたのイベント会場に!
アイデア次第で使い方は無限大。八ヶ岳の大自然をあなたならどのように使いますか?
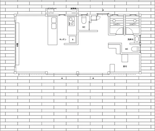
メイン施設
五感で季節を感じられる森の中のワークスペース。広々としたテラス、キッチンを併設し、様々なイベントに対応。
■ 母屋(ワークスペース&カフェスペース)
8MATOの中核となる施設です。
地産地消の木材を用い、石場立てや漆喰の塗り壁、釘を使わずない日本の伝統工法で建てられた趣のある建物。全面ガラスの開口部で、室内でありながら自然と一体感を味わうことができます。
オープンカウンターのキッチンを併設し、薪ストーブで冬でも快適に過ごすことができます。
8MATOの中核となる施設です。
地産地消の木材を用い、石場立てや漆喰の塗り壁、釘を使わずない日本の伝統工法で建てられた趣のある建物。全面ガラスの開口部で、室内でありながら自然と一体感を味わうことができます。
オープンカウンターのキッチンを併設し、薪ストーブで冬でも快適に過ごすことができます。
定員10〜15名程度(テラスと一体で使えば、30〜40名程度)
約65m2(テラスと一体で利用する場合は、145m2)
OPEN 9:00 CLOSE 17:00 (要相談)
設備
・WiFi(2700坪の森の中どこからでも高速接続)
・キッチン
・男女別のトイレ、シャワールーム、手洗い
・薪ストーブ
・駐車場 10~12台程度(並列駐車すれば20台程度)
・WiFi(2700坪の森の中どこからでも高速接続)
・キッチン
・男女別のトイレ、シャワールーム、手洗い
・薪ストーブ
・駐車場 10~12台程度(並列駐車すれば20台程度)
■ 森に浮かぶテラス
森の斜面に張り出した迫力のテラス。大屋根の下で雨の日も晴れの日も、天気を気にすることなく使えます。それはまるで、八ヶ岳の森に浮かぶ劇場のようです。眼下に広がる森と一体になりながら、鳥のような視点で語り合い、集う贅沢は、あなたのイベントを特別な桃ものにしてくれます。
森の斜面に張り出した迫力のテラス。大屋根の下で雨の日も晴れの日も、天気を気にすることなく使えます。それはまるで、八ヶ岳の森に浮かぶ劇場のようです。眼下に広がる森と一体になりながら、鳥のような視点で語り合い、集う贅沢は、あなたのイベントを特別な桃ものにしてくれます。
定員20〜25名程度(母屋と一体で使えば、30〜40名程度)
約80m2(母屋と一体で利用する場合は、145m2)
OPEN 9:00 CLOSE 17:00 (要相談)
設備
・WiFi(2700坪の森の中どこからでも高速接続)
・テレワークブース(1人用・個室・サブディスプレイやマイク等完備)
・WiFi(2700坪の森の中どこからでも高速接続)
・テレワークブース(1人用・個室・サブディスプレイやマイク等完備)
アウトドア施設
スノーピーク製品で揃えたキャンプ道具や囲炉裏(いろり)小屋での非日常的BBQ。
■ 囲炉裏(いろり)小屋”かぶと虫”
職人さんが、真砂土を固めて丁寧に築いた大型の囲炉裏。
焚き火でも炭でも大丈夫。森に溶け込む大屋根の下には、10〜15名が集えるベンチを備え、お天気が良ければ八ヶ岳ブルーの空や満点星空を眺めながら、ジビエBBQなども楽しめます。
職人さんが、真砂土を固めて丁寧に築いた大型の囲炉裏。
焚き火でも炭でも大丈夫。森に溶け込む大屋根の下には、10〜15名が集えるベンチを備え、お天気が良ければ八ヶ岳ブルーの空や満点星空を眺めながら、ジビエBBQなども楽しめます。
定員10名程度(晴天時は周りに椅子を追加設置可能)
約10m2
IN 9:30 OUT 17:00 (要相談)
設備
・囲炉裏のまわりに、10名程度が座れるベンチ。
・夜間利用のための照明を完備。
・電源コンセントもあります。
・水道や手洗いは、すぐ傍にあります。
・囲炉裏のまわりに、10名程度が座れるベンチ。
・夜間利用のための照明を完備。
・電源コンセントもあります。
・水道や手洗いは、すぐ傍にあります。
■ 8MATOの森
八雲神社に隣接した楢や栗、桜などが自生する広葉樹林。子供たちが走り回り、大人たちは静かに散策。森を活かしたアートイベントやゲームなどにもご利用頂けます。
八雲神社に隣接した楢や栗、桜などが自生する広葉樹林。子供たちが走り回り、大人たちは静かに散策。森を活かしたアートイベントやゲームなどにもご利用頂けます。
設備
・2700坪の森がイベント会場です。
・屋外にトイレや水場があります。
・キャンプサイトやトレーラーハウスもイベントにご利用頂けます。
・囲炉裏小屋「かぶとむし」での焚き火を囲むイベントを開催することもできます。
・2700坪の森がイベント会場です。
・屋外にトイレや水場があります。
・キャンプサイトやトレーラーハウスもイベントにご利用頂けます。
・囲炉裏小屋「かぶとむし」での焚き火を囲むイベントを開催することもできます。
■ その他施設
・屋外トイレ
・屋外水場
・日本銘水百選・8MATOの井戸
・駐車場:10〜12台程度(並列駐車すれば20台程度)
・8MATO周辺に温泉施設多数
・屋外トイレ
・屋外水場
・日本銘水百選・8MATOの井戸
・駐車場:10〜12台程度(並列駐車すれば20台程度)
・8MATO周辺に温泉施設多数
機材や備品
施設をご利用の方は、無料でご利用いtだけます。
■ 施設全体
・WiFi(2700坪の森の中どこからでも高速接続)
・ACも使える大容量モバイル・バッテリー
・WiFi(2700坪の森の中どこからでも高速接続)
・ACも使える大容量モバイル・バッテリー
■ 母屋・テラス
・テーブルと椅子 30名分(持込での追加もできます)
・移動可能なカウンターテーブル
・コンロ・BBQグリル(テーブルにビルトイン可)
・テラス用焚き火台
・ホワイトボード
■ アウトドア
・薪や炭・着火のための道具や炭熾し道具
・囲炉裏のためのふいごやシャベル、トングなど
■ デジタル機器
・ディスプレイ 5台(15〜55インチ)
・プロジェクター
・オンライン配信機材(マイク、カメラ、スイッチャー)
・プリンター&コピー機
・各種ケーブル・変換アダプタ
フード&ケータリング
八ヶ岳の食材を使った料理でイベントを盛り上げたい。そんなご要望にもお応えいたします。
八ヶ岳の自然の食材をふんだんに使った8MATOランチの他に、以下の食事も用意することができます(要予約・要相談)。
■ シビエBBQビュッフェ
地元の山で捕獲し、丁寧に下処理した鹿や猪などを、料理人がビュッフェ・スタイルでおもてなしいたします。肉だけではなく、他の料理とご一緒に提供いたします。ご希望があれば、懐石スタイルで、山の幸を存分に楽しんでいただくこともできます。5,500円/人~
地元の山で捕獲し、丁寧に下処理した鹿や猪などを、料理人がビュッフェ・スタイルでおもてなしいたします。肉だけではなく、他の料理とご一緒に提供いたします。ご希望があれば、懐石スタイルで、山の幸を存分に楽しんでいただくこともできます。5,500円/人~
■ 8MATO特別ランチ
八ヶ岳の食材をふんだんに使ったランチを提供いたします。ご希望があれば、腸活やデトックスなど、お腹や身体の健康を助けてくれるメニューも提供できます。2,200円/人~
八ヶ岳の食材をふんだんに使ったランチを提供いたします。ご希望があれば、腸活やデトックスなど、お腹や身体の健康を助けてくれるメニューも提供できます。2,200円/人~
■ キッチンカー
ご要望に応じて、各種キッチンカーを手配できます。
天然果実をふんだんに使った飲み物やアルコール類・カクテルを提供するドリンク・バー、地元の食材を使ったクレープ、本格的なベトナム料理など、絶品の料理もお届けいたします。
ご要望に応じて、各種キッチンカーを手配できます。
天然果実をふんだんに使った飲み物やアルコール類・カクテルを提供するドリンク・バー、地元の食材を使ったクレープ、本格的なベトナム料理など、絶品の料理もお届けいたします。



























